
今回はより細かな視点で、国土交通省が住宅分野で推進している『ZEH』と『GX志向型住宅』というエネルギー施策について、その概要を確認するとともに、両者の温熱環境や光熱費がどのくらい変わるのか見ていきたいと思います。
目次
- 1.ZEHとは
- 2.GX志向型住宅とは
- 3.ZEH基準とGX基準の比較
- 4.ZEHとGX住宅の仕様比較
- 5.ZEHとGX住宅の室温比較
- 6.ZEHとGX住宅の光熱費比較
- 7.まとめ(GX住宅のメリット・デメリット)
1.ZEHとは
ZEH(ゼッチ)(ネット・ゼロ・エネルギー・ハウスの略)とは「外皮(外気に面する壁や屋根や床)の断熱性能等を大幅に向上させるとともに、高効率な設備システムの導入により、室内環境の質を維持しつつ大幅な省エネルギーを実現した上で、再生可能エネルギーを導入することにより、年間の一次エネルギー消費量の収支がゼロとすることを目指した住宅」です(引用:国土交通省HP)

つまり自分の家で消費されるであろうエネルギー量以上に創エネなどの設備でエネルギーを生み出してをネット(正味)ゼロ・エネルギーにするということを目指しています。
具体的には、
- 建物の性能として、断熱等性能等級5以上を確保(かなり低い断熱性です。現代の環境変化では低性能です)
- 設備も含めたエネルギー性能として、再生可能エネルギーを除く一次エネルギー消費量削減率20%以上
- 創エネも含めたエネルギー性能として、再生可能エネルギーを含む一次エネルギー消費量削減率100%以上
が求められます。
1.断熱等性能等級5以上というのは、具体的には下記のUA値以下になるように断熱性能を高めるということになります。
※UA値は外皮における断熱性能であり、換気扇や給気口から出入りする熱損失の数値は考慮されていません。
考慮した基準となるのは、元々断熱性を現わす際に用いていたQ値となります。

2.GX志向型住宅とは
そして新しく定義された、今年話題のGX志向型住宅の概要です。
こちらは補助金160万円の影響もあり、補助金も早い段階で全額執行されていることから、住まい手よりも作り手の努力が伺えますが、本来は自分たち家族が住まう家を、目先ではなく、将来を見越して選択されるべき、これからの標準的な住宅でなければなりません。
GX(グリーン・トランスフォーメーション)志向型住宅とは、ZEH基準の水準を大きく上回る省エネ性能を有する脱炭素志向型の住宅です(引用:子育てグリーン住宅支援事業HP)。
具体的には、
- 建物の性能として、断熱等性能等級6以上を確保(これからの住宅に最低限必要な性能)あくまで入口基準
- 設備も含めたエネルギー性能として、再生可能エネルギーを除く一次エネルギー消費量削減率35%以上
- 創エネも含めたエネルギー性能として、再生可能エネルギーを含む一次エネルギー消費量削減率100%以上
- 高度エネルギーマネジメントを導入
以上の性能が求められます。
4.の高度エネルギーマネジメントとはHEMS(ホーム・エネルギー・マネジメント・システム)のことです。
1.の断熱等性能等級6というのは、具体的には下記の基準値よりも小さいUA値(外皮性能)にするということです。

3.ZEH基準とGX基準の比較
上記の表について解説します。
例として6地域(我々の住んでいる中四国の代表的な地域)のUA値を比較すると、ZEH基準では0.60W/㎡Kだったところ、GX志向型住宅の基準(以下GX基準)では0.46W/㎡Kが必要になります。
つまり現在普通に建築されている断熱性能の家より、23%以上UA値を低減する(断熱性能を高める)ということになります。
再生可能エネルギーを除く一次エネルギー消費量削減率は20%から35%になり、15%低減する必要があるということで、設備での省エネよりも外皮(断熱)性能の強化がいかに大切であるかに重点が置かれていることがわかります。
ではこの23%の断熱強化とは具体的にどのような仕様の変更になるのでしょうか?
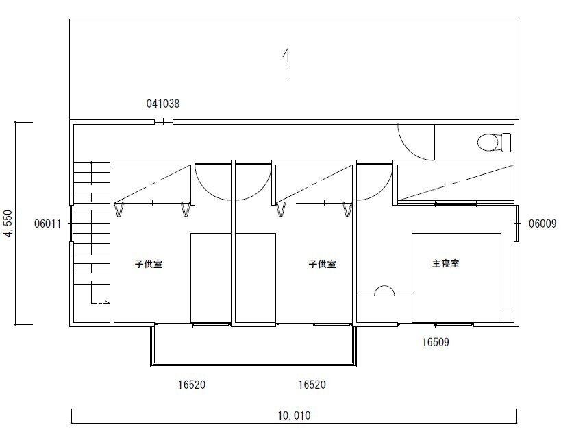
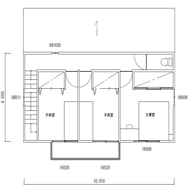
4.ZEHとGX住宅の仕様比較
例として6地域(我々の住んでいる中四国の代表的な地域)に建築する延床面積113.86㎡(34坪程度)のこんな建物で考えてみました。
もちろんですが、最近の窓が少なく、窓が小さな無理やり高断熱化された住まいではなく、スタジオダイワが得意とする、窓も大きく外とのつながりなども設計に落とし込んで考えたモデルケースとなります。
ですので、南面に窓を大きくとってパッシブデザインの日射取得に配慮した間取りになっています。



この建物をZEH基準程度の断熱性能にしようとすると、だいたいこんな仕様が想定できます。

あくまでこのプランの場合の仕様例です。この仕様を推奨するわけではありません。
ではGX基準ではどうでしょうか。

天井の断熱はある程度厚くなりましたが、要求される増額費用もさほどではないように考えてみました。
外壁はそのまま、床は30mmアップ、土間は10mmアップ、サッシは枠は変わらず、ガラスだけLow-Eガラスに変更しています。
これぐらいの仕様変更なら、構造材が厚くなるということもないので”やれそう”という印象を受ける方も多いのではないでしょうか。
ちなみにもう2025年分のGX志向型住宅の子育てグリーン住宅支援事業の補助金は予算上限に達したため終了していますが、GX志向型住宅(以下GX住宅)の補助額は160万円、ZEHの補助額は40万円なのでGX住宅の方が120万円多くいただけることになります。上記の仕様変更程度であれば120万円を国から補助してもえあれば、誰でもやれそうですよね。
スタジオダイワでは、この基準よりも一段高い性能が今後の中四国の環境変化に伴う、気候変動も見越したうえで必要になると考えています。
その上で、必ず地震後も安心して住まえる耐震性が必要であり、断熱性能を維持する為にも家の変形を最小化し、ゆがみによる隙間の拡大や、断熱性能が損なわれにくい設計をしなくてはなりません。
耐震性能と断熱性能は表裏一体で必要な性能ともいえます。(断熱化された住まいは重たくなるので、頑丈に作る意味でも)
5.ZEHとGX住宅の室温比較
では上記の設計仕様の場合の室温シミュレーションをしてみましょう。
シミュレーションはサンプル地域を選定し、今の生活環境に近い気象データを使用しました。
ちなみにリビングは就寝中は暖房しておらず、朝7時からエアコンをつけたという設定です。子供室も就寝中は暖房をしない設定です。


どの部屋も表面温度・体感温度が1~2℃上がっているのが分かります。
1~2℃しか変わらないのか・・・と思われる方もいらっしゃるかもしれませんが、冬に足元が15℃だと「寒くて居られない」けれど、17℃だったら「ちょっと重ね着すればいける」という感じだと思います。疎かに考えてはいけません。
とても小さな差に思えますが、この1~2℃は経験上、お客様から頂く声でも結構違います。
上記は最寒日の朝方という一瞬を切り取ったものですが、冬の全期間における温度の出現割合をシミュレーションしたのが下記です。

これもまた微妙な差・・・一瞬思えますが、左のZEHでは15℃未満になる割合が20%ありますが、右のGX住宅では12%に低減しています。
GX住宅では「冬の期間のうち、12%の時間帯しか15℃未満にならない」ということです。
今回はあくまで「仕様の違いでどれだけ温度が変わるかを比較するためのシミュレーション」でした。
実際には住まい手の暮らし方、パッシブな暮らしの工夫(窓まわりの付属部材を時間や季節によって使い分ける)や、暖房範囲・スケジュールの設定をうまく調整することで、エネルギーを多く使わずに20℃以上を保つことも可能です。「GX住宅でも寒いのか・・・」と捉えずに、「寒くない家をつくる土台としては、ZEHよりGXの方が費用をかけた以上に有利なんだな」と覚えておいていただければと思います。
私がよくお客様にお話しする事なのですが、性能は家族を裏切りません。
最初に投資した分は、住み続ける間に必ず100%還元されますし、健康面も改善されますので、とてもリーズナブルです。
費用対効果という言葉を使われる営業マンが多いですが、住まいの高性能化に資する金額こそ、まさに費用対効果抜群の住まいなのです。
6.ZEHとGX住宅の光熱費比較
では最後に光熱費を比較してみたいと思います。
こちらもシミュレーションも同じ条件で計算しております。

正直、これくらいの性能の差ではほとんど変わりませんでした。GX住宅の方が年間で3373円お得・・・
GXの基準もいかに、大した基準でないかお分かりいただけると思います。
なのでスタジオダイワでは、ZEHをはるかに上回り、GXを超える性能を基本性能としてお客様に提案させて頂いております。
GX程度で満足している他社と比較してもらえると、非常に嬉しい限りでございます。
これを見れば、UA値0.46程度の中途半端なGX程度では、ZEHと比べて建築費(イニシャルコスト)の増加分を光熱費(ランニングコスト)でペイすることはできないということが言えますね。
しかもよく見てみると夏はZEHのほうが安くなっています。これはちゃんと日射遮蔽をしていないために多くの日射熱が入ってきてしまって、それが高い断熱性能のために夜まで熱ごもり(オーバーヒート)を起こしてしまっているからです。(最近の窓の小さな家も要注意です)
改めて「高断熱だけを至上命題として目指すのは危険」ということがこれでお分かりいただけたと思います。
いかに設計者が断熱性能数値の適正と設計プランにパッシブを落とし込めるかで、家は全く違う建物になるといっても過言ではありません。
デザインの為に窓を…壁を…最悪です。それよりも大切なのは家計を守る事であり、家族の将来のはずですから。
7.まとめ(GX住宅のメリット・デメリット)
ということで、ZEHからGX住宅に仕様アップするメリットは、
- 補助金が多くもらえる(人気なのですぐなくなってしまうけれど)
- 冬にエネルギーを削減しつつ健康的な室温が得られやすくなる
- 売却を考える際の資産価値が高い
- GX程度入口程度の性能なら、コストは補助金内で賄える
という大きく4つになるようです。
またデメリットとしては
- 補助金がもらえないとしたらコストメリットはない(ランニングコストはほとんど下がらない、イニシャルコストは高くなる)
- 夏、パッシブな暮らしを実践しないと熱ごもりを起こす(オーバーヒート)今の家に多いです
- GXを超えるスタジオダイワの性能がなければ、費用対効果はデメリットとなりうる
が挙げられます。
今回の比較を見て「やっぱりGXの方が良いわ!」と即座に思われた方は少ないのではないかと思います。
それは温度の違いが1~2℃だったり、光熱費がほとんど変わらないからだと思いますが、リアルZEHや、本当に快適で健康的な温熱環境の家づくりに取り組んでいる方は、こうした小さな数字の積み重ねが後から結果に響いてくるということを実感していると思います(実際、蓄電池やEVを使ってオールタイム車までリアルZEHの住まい手である私はものすごく実感しています)。
「GXの方が良い(またはGXじゃなくていい)」とハッキリ言うためには外皮性能計算やエネルギー性能計算、ランニングコストまで含めたコストシミュレーション、室温シミュレーション、空調計画など、知らなければいけないこと、やらなければならないことが多々あります。
そして、GX入口性能ではなく、それを上回る性能でなければメリットは少ないという事も。
住まいの性能について、一段関心の高い方はスタジオダイワしかない!と本気で思っています。
なんちゃってや大げさなウソで良いのなら、他にも選択肢は無限に広がっていると思います。
車にエアバックがあると思って車に乗るのと、エアバックがない車を乗るのと、どちらが安心でしょうか?
少し安くなるからと言って、エアバックをのけますか?
走行アシスト機能まで備わっていないと安心できないのではないでしょうか?
その上で、燃費が悪い車をわざわざ選びますか?
住宅の性能とはいうなれば、このような絶対的な経済性メリットを備え、且つ住むうえで安心であると思っています。
それくらい、家づくりに誇りを持ち、真面目に取り組んでいる会社だとご理解いただければ何よりの幸いでございます。